Page 52 - ไม้สน2545
P. 52

42































































                                       ั

                                                   ้
                                                ์
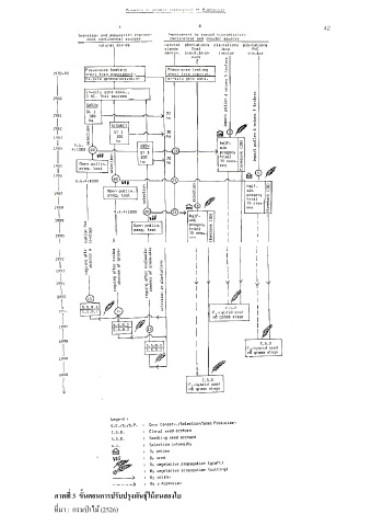
                  ภาพที  3  ขันตอนการปรบปรุงพันธุไมสนสองใบ
                             ่
                  ทมา :  กรมปาไม้ (2526)
                    ี
   47   48   49   50   51   52   53   54   55   56   57