Page 9 - BUKU PENGURUSAN SMKSAC 2019
P. 9

9                                  MANUAL PENGURUSAN SMK. ST. ANNE’S CONVENT  2019



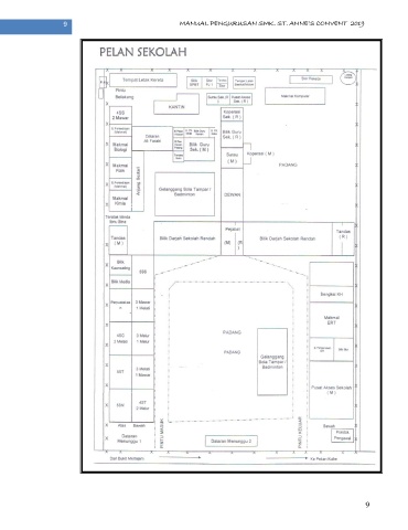
                                                       PELAN SEKOLAH

























































                                                                                                               9
   4   5   6   7   8   9   10   11   12   13   14