Page 256 - AutoCAD Dalam KEJURUTERAAN ELEKTRIK Dan ELEKTRONIK
P. 256

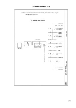
LATIHAN KEMAHIRAN 11.14






















































































                                                                                                            244
   251   252   253   254   255   256   257   258   259   260   261