Page 146 - Katalog_esco_06_10_2008_2.pdf
P. 146
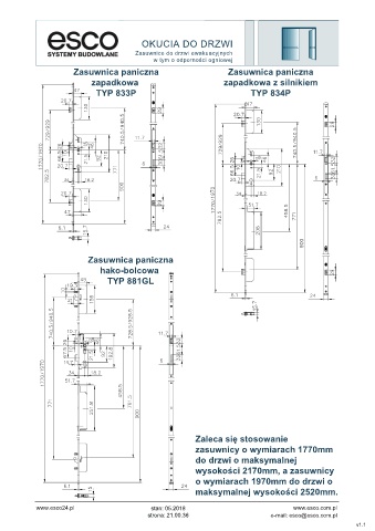
OKUCIA DO DRZWI
Zasuwnice do drzwi ewakuacyjnych
w tym o odporności ogniowej
Zasuwnica paniczna Zasuwnica paniczna
zapadkowa zapadkowa z silnikiem
TYP 833P TYP 834P
□
□
Zasuwnica paniczna
hako-bolcowa
TYP 881GL
□
Zaleca się stosowanie
zasuwnicy o wymiarach 1770mm
do drzwi o maksymalnej
wysokości 2170mm, a zasuwnicy
o wymiarach 1970mm do drzwi o
maksymalnej wysokości 2520mm.
www.esco24.pl stan: 05.2018 www.esco.com.pl
strona: 21.00.36 e-mail: esco@esco.com.pl
v1.1

