Page 460 - Katalog_esco_06_10_2008_2.pdf
P. 460
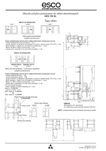
Okucia uchylno-przesuwne do okien aluminiowych
HKS 150 SL
Typy okien
WIDOK OD WEWNĄTRZ
" lewe " " prawe " " lewe "
Okna jednoskrzydłowe
uchylno-przesuwne
Celem prawidłowego doboru okuć należy zastosować następujące okucia:
- zestaw podstawowy ( lewy lub prawy ) - 1 kpl.
- zestaw obwiedni do skrzydła ( uzależnione od systemu aluminiowego V.01;V.02) - 1 szt.
- płytki sterujące ( uzależnione od systemu aluminiowego ) - 1 parę
- klamka do okna uchylno-przesuwnego - 1 szt.
- zestaw szyn ( uzależniony do szerokości skrzydła ) - 1 kpl.
WIDOK OD WEWNĄTRZ
skrzydło bierne skrzydło czynne
" lewe " " prawe "
Okno dwuskrzydłowe z ruchomym słupkiem
uchylno-przesuwne
Celem prawidłowego doboru okuć należy zastosować następujące okucia:
- zestaw podstawowy lewy - 1 kpl.
- zestaw podstawowy prawy - 1 kpl.
- zestaw obwiedni do skrzydła ( uzależnione od systemu aluminiowego V.01;V.02) - 2 szt.
- płytki sterujące ( uzależnione od systemu aluminiowego ) - 2 pary
- klamka do okna uchylno-przesuwnego - 2 szt.
- zestaw szyn ( uzależniony do szerokości skrzydeł ) - 2 kpl.
oraz do skrzydła biernego
- punkt nitowany na listwie transmisyjnej - 1 szt.
esco nr. 70-630128
- zaczep na ramę - 1 szt.
V.01 - esco nr. 70-630136
lub
V.02 - esco nr. 70-630640
Rowek okuciowy skrzydła okiennego
“EUROROWEK”
podkładka pod szynę
Rowek ramy okiennej UWAGA
Skrzydło okienne V.01 V.02 Wymagana min. wysokość
do zabudowy szyny jezdnej dolnej to 45 mm
OKFF- maksymalna górna krawędz gotowej posadzki
Rama okienna
Rowek ramy okiennej
www.esco.com.pl
e-mail: esco@esco.com.pl

