Page 107 - 90244_Catalog hws sanwa products
P. 107
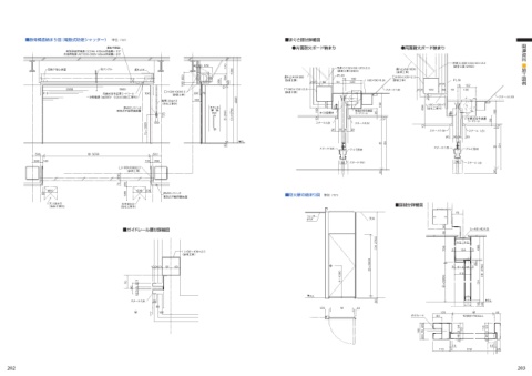
˙మࠎߏೲ·ΓਤʢిಈࣜԎγϟολʔʣ ୯ҐɿNN ˙·͙͞෦ৄࡉਤ
࿈ಈதܧث ˔ย໘ՐϘʔυೲ·Γ ˔྆໘ՐϘʔυೲ·Γ
ղ์ஔ༻ిݯ %$ 7 N"ڙڅئ͍·͢
ॆి༻ిݯ "$ 7 7 N"ڙڅئ͍·͢
ଋ $ ʷ ʷ ʷ
ʢమࠎࣄʣˏ
ٸ߱Լఀࢭஔ Ξϯάϧ ৼΕࢭΊ ଋ $ ʷ ʷ ʷ ৼΕࢭΊˏ
ʢమࠎࣄʣˏ ʢమࠎࣄʣ
ৼΕࢭΊˏ
˘ ʷ ʷ
ʢమࠎࣄʣ 1- U ˘ ʷ ʷ U ʢమࠎࣄʣ 1- U
˘ ʷ ʷ ενʔϧ U
༗ઢࣜ৴߸ஔίʔυϦʔϧ ˘ 9 9 ʢమࠎࣄʣ
ʢమࠎࣄʣ
Ұ࣍ଆిݯ П 7ɹ ̺͆ʢࣾࣄ֎ʣ ενʔϧ U
Пʷ
ʢࣾࣄ֎ʣ - ʷ ʷ
ԡϘλϯεΠον εϥοτ ʢࣾࣄ֎ʣ
அɹ໘
ిؾࣜखಈดஔ ʦ'ܗʧ ·͙͞ःԎࡐ ༗ઢࣜ৴߸ஔ
⡪ $) ίʔυϦʔϧ ༗ઢࣜ৴߸ஔ
ενʔϧ U ενʔϧ U ίʔυϦʔϧ
'-ʙ ενʔϧ U ενʔϧ U
˝'- $)
⡪ ⡪ $)
ενʔϧ U Ξϧϛܗࡐ ενʔϧ U Ξϧϛܗࡐ
⡹
ενʔϧ U ενʔϧ U
˘ 9 9
ʢమࠎࣄʣ
ԡϘλϯεΠον ˙Ր൶ͷೲ·Γਤ ୯ҐɿNN
ిؾࣜखಈดஔ
ఱҪվΊޱ ఱҪվΊޱ ˙൶෦ৄࡉਤ
ʢࣾࣄ֎ʣ ʢࣾࣄ֎ʣ
γϟολʔ
·͙͞ ఱҪ
˙ΨΠυϨʔϧ෦ৄࡉਤ -ʵ ʷ ʷ U
$)
˘ ʷ ʷ
ʢమࠎࣄʣ
⡪ʹ
$)
)ʙ
⡪ʹ %)
' -
ενʔϧ U ' -
⡹
⡹ ⡹
ΨΠυϨʔϧ ༗ޮ⡹ Ҏ্
% 8
202 203

