Page 75 - 90244_Catalog hws sanwa products
P. 75
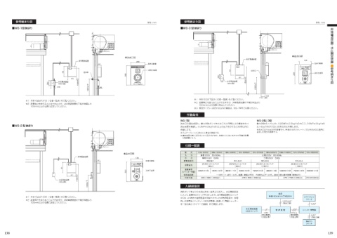
ࢀߟೲ·Γਤ ୯ҐɿNN ࢀߟೲ·Γਤ ୯ҐɿNN
˙84 ܕ ೲ·Γ ˙84 ܕ ೲ·Γ 開
˔ૹਫޱ෦ ˔ૹਫޱ෦
ඇৗిݯஔ
ඇৗిݯஔ
˞ ૹਫޱ൘ ˞ ૹਫޱ൘
γϟολʔ։์ஔ γϟολʔ։์ஔ
࡞ಈਫѹɿ̌ ̎̑ʙ̌ ̢̰̑̿
ૹਫޱۚ۩ ˞ ૹਫޱ Ї ετϨʔτϊζϧ༻
ૹਫޱ͔Β̲̼̑ҎͰૹਫ
˞ ૹਫޱ ૹਫޱۚ۩
˞ ˞
ਫѹ։์ஔ ˞ ਫѹ։์ஔ ˞
ʢ84 ܕʣ ッター ʢ84 ܕʣ ̨̖̣̬̖
65 圧3
4)655&3
ҎԼ ҎԼ
˞
ʙ
˞ ֎ܗੇ๏1 ʪ ༷ҰཡදʫΛ͝ཡ͍ͩ͘͞ɻ ˞ ֎ܗੇ๏Լهͷʪ ༷ҰཡදʫΛ͝ཡ͍ͩ͘͞ɻ
˞ ઃஔߴ͞Λม͑Δ͜ͱͰ͖·͕͢ɺඇৗిݯஔͷԼ͕চ໘ΑΓ ˞ ઃஔߴ͞Λม͑Δ͜ͱͰ͖·͕͢ɺඇৗిݯஔͷԼ͕চ໘ΑΓ
ɹɹɹ NNҎ্ͷҐஔʹઃఆ͍ͯͩ͘͠͞ɻ ɹɹɹ NNҎ্ͷҐஔʹઃఆ͍ͯͩ͘͠͞ɻ
˞̏ นް͕ ʙ NNҎ֎ͷ߹ɺ84 ܕΛ͝ར༻͍ͩ͘͞ɻ
࡞ಈ݅
84 ܕ 84 ܕɺ ܕ
ૹਫޱͷ࿈݁ۚ۩ʹɺಈྗফϙϯϓ·ͨ͜ΕͱಉҎ্ͷػೳΛ࣋ͭ ಈྗফϙϯϓʹΑΓɺ .1Bʢ LHG ὔʣΛ͑͜ɺ .1Bʢ LHG ὔʣ
˙84 ܕ ೲ·Γ ՃѹஔΛଓ͠ɺ .1B LHG ὔʣҎ্ͷѹྗΛ͔͚Δͱ ඵҎʹ ҎԼͷѹྗΛ͔͚Δͱ ඵҎʹ࡞ಈ͠·͢ɻ
࡞ಈ͠·͢ɻ ˞ਫޱΑΓ ᶲҎͷڑ͔ΒɺݺশЇ ͷετϨʔτϊζϧΛਫޱʹ֯ʹɹ
˞ϑϩΞʔυϨΠϯʹഉਫͨ͠߹ͷͰ͢ɻ ์ਫͨ͠߹ͷͰ͢ɻ
˞࿈݁ۚ۩ࠩ͠ࠐΈࣜͱωδࠐΈ͕ࣜ͋ΓɺҬ͝ͱʹҧ͍·͢ͷͰॴফॺ
ɹʹ֬ೝئ͍·͢ɻ
༷Ұཡද
˔ૹਫޱ෦ ܗɹɹࣜ 4*/ 4$ 4*/ 8$ 4*/ 4$ 4*/ 8$ 4*/ 4% 4*/ 8% 4*/ 4$ 4*/ 8$ 4*/ 4$
ඇৗిݯஔ ೖɹɹྗ ୯૬ 7ɹ )[ ࡾ૬ 7ɹ )[
ग़ɹɹྗ ୯૬ 7ɹ )[ ࡾ૬ 7ɹ )[
˞ ૹਫޱ൘ ిܗࣜ 4*/ . 4*/ . 4*/ . 4*/ .
γϟολʔ։์ஔ 4$ ʷ ύοΫ 4$ ʷ ύοΫ 4$ ʷ ύοΫ % ʷ ύοΫ
࡞ಈਫѹɿ̌ ̎̑ʙ̌ ̢̰̑̿
Ї ετϨʔτϊζϧ༻ ༻ి ʢ 7ʣ ʢ 7ʣ ʢ 7ʣ ʢ 7ʣ
ૹਫޱ͔Β̲̼̑ҎͰૹਫ
˞ ద༻ෛՙ
ૹਫޱۚ۩ ʢγϟολʔʣ 8ʷ 8ʷ 8ʷ 8ʷ 8ʷ 8ʷ 8ʷ 8ʷ 8ʷ
ʵ ˆʙʴ ˆʢͨͩ͠ɺ݁࿐ɺౚ݁ෆՄʣɹ3) ˋҎԼʢͨͩ͠ɺૹਫޱ෦֎ઃஔɺ߱ӍՄ ʣ
˞ ༻Թ࣪ ʷ ʷ NN ʷ ʷ NN ʷ ʷ NN ʷ ʷ NN
֎ܗੇ๏
ਫѹ։์ஔ ˞ ̨̖̣̬̖
ҎԼ ೖઢܦ࿏ਤ
4)655&3
ʢ84 ܕʣ
ফϙϯϓंΑΓͷਫྲྀૹਫޱۚ۩ΑΓྲྀೖ͠ɺਫѹ։์ஔ
ʹೖͬͯɺஔͷεΠονΛ0/͠·͢ɻਫѹ։์ஔͷεΠον ిݯ
˞ ֎ܗੇ๏1 ʪ ༷ҰཡදʫΛ͝ཡ͍ͩ͘͞ɻ ͕ 0/ ͨ࣌͠Ͱద༻ిݯ͕ڙڅ͞Ε͍ͯΕ༻ిݯͰɺఀి ୯૬ 7·ͨࡾ૬ 7 ΤϚʔθϯγ
˞ ઃஔߴ͞Λม͑Δ͜ͱͰ͖·͕͢ɺඇৗిݯஔͷԼ͕চ໘ΑΓ ࣌ʹిʢόοςϦʔʣΛަྲྀిݯʹมͯ͠ɺిಈγϟολʔ ·ͨ ˘ εΠον
ɹɹɹ NNҎ্ͷҐஔʹઃఆ͍ͯͩ͘͠͞ɻ ʢผ్ࣄʣ
ΛҰఆͷߴ͞ʢλΠϚʔͰௐʣ·Ͱ։์͠·͢ɻ ˘
ਫѹ։์ஔ ి ݯ ஔ γϟολʔ։ดػ
ʢਫѹεΠονʣ ˘ Ҏ্
˘
( ) ( ) ʢผ్ࣄʣ
Րઢ
Րઢ
˘
ผ్ࣄ
ผ్ࣄ
ԡϘλϯ
εΠον
138 139

