Page 97 - 90244_Catalog hws sanwa products
P. 97
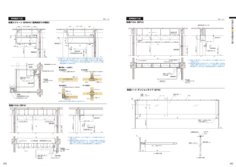
ࢀߟೲ·Γਤ ୯ҐɿNN ࢀߟೲ·Γਤ ୯ҐɿNN
ԎεΫϦʔϯʤ#4. ʥʢ֯ೲ·Γͷ߹ʣ Ԏύωϧʤ#16ʥ
ࣗಈดஔ &3 %
ϐον˺ ϐον˺
γϣοΫΞϒιʔό ࣗಈดஔ
ʢ&3 % ʣ
⡪ ⡪ Ԏײث ˞
⡪ ⡪ ੇ๏ௐ෦ ⡪ Nʙ N
68$ Ϣχοτ෯ 68# Ϣχοτ෯ 68# Ϣχοτ෯ 68# Ϣχοτ෯ 68"
Ԏײث ˞
ՄಈϨʔϧ ࠲൘ ࠲൘ ⡹
⡹ ⡹ ࿈ಈ੍ޚث
Ҏ্ ˞ ࿈ಈ੍ޚث ʙ খܕखಈૢ࡞ശ 4)0.ᶘ ʙ Ҏ্ ˞ Ҏ্ ˞ ࿈ಈ੍ޚث ʙ Ҏ্ ˞ खಈૢ࡞ശ )0) ʙ
࿈ಈ੍ޚث
' -
' -
˞ ԎεΫϦʔϯ߱Լ࣌ɺ࠲൘ͷԼ͔Β' - ·Ͱͷڑ͕ NNҎ্ඞཁͱͳΓ·͢ɻ ⡹ ' -
˞ ԎײثԎͨΕนຊମ͔Β ʙ NҎͷڑͰͨΕนຊମͷ྆ଆʹઃஔ͢Δ ύωϧΓʢน͚ʣ ύωϧΓʢน͚ʣ ˞ Ԏύωϧ߱Լ࣌ɺύωϧͷԼ͔Β' - ·Ͱͷڑ͕ NNҎ
ඞཁ͕͋Γ·͢ɻͨͩ͠ɺͨΕน⡹͕େ͖͍߹Ԏ۠ըઢʹԊͬͯ NҎ͝ͱʹԎײ ΞτϨοτϘοΫε ্ඞཁͱͳΓ·͢ɻ
ثΛઃஔ͢Δ͜ͱΛਪ͠·͢ɻ ˞ ԎײثԎͨΕนຊମ͔Β ʙ NҎͷڑͰͨΕนຊମ
Ԏײث ˞ ࣗಈดஔ &3 4 ⡪ ͷ྆ଆʹઃஔ͢Δඞཁ͕͋Γ·͢ɻͨͩ͠ɺͨΕน⡹͕େ͖͍߹
։ดػ ˙ՄಈϨʔϧೲ·Γ Ԏ۠ըઢʹԊͬͯ NҎ͝ͱʹԎײثΛઃஔ͢Δ͜ͱΛਪ͠·͢ɻ
˔ઢೲ·Γ ˔5ࣈೲ·Γ
খܕखಈૢ࡞ശ 4)0.ᶘ Ϩʔϧ ຊΛҰઢʹೲΊ·͢ɻ Ϩʔϧ ຊΛ5ࣈܕʹಥ͖߹ΘͤͯೲΊ·͢ɻ
ݕޱʢ ˘ Ҏ্ʣ
·͙͞δϣΠϯτ ʢผ్ࣄʣ
ݕޱʢ ˘ Ҏ্ʣ ՄಈϨʔϧ ࿈ಈ੍ޚث
ʢผ్ࣄʣ ઐ༻ճઢʣ ʢઐ༻ճઢʣ
Ұ࣍ଆిݯ"$ 7
ΞτϨοτϘοΫε ʢผ్ࣄʣ ·͙͞ ՄಈϨʔϧ Ԏײث ˞ Ұ࣍ଆిݯ"$ 7
࿈ಈ੍ޚث ·͙͞ ʢผ్ࣄʣ
˔֯ೲ·Γ ˔ेࣈೲ·Γ
Ϩʔϧ ຊΛ֯ʹಥ͖߹ΘͤͯೲΊ·͢ɻ
·͙͞δϣΠϯτ Ԏγʔτ ςϯγϣϯλΠϓʤ#54ʥ
ՄಈϨʔϧ
·͙͞
։ดػ ·͙͞δϣΠϯτ ෦Ϩʔϧ ಁ໌ෆ೩γʔτ ࣗಈดஔ &3 %
ࣗಈดஔ &3 4 ෦ϨʔϧΧόʔ ্Ϩʔϧ U ఱҪ
খܕखಈૢ࡞ശ 4)0.ᶘ ՄಈϨʔϧ น "
·͙͞δϣΠϯτ ·͙͞ γϣοΫΞϒιʔό
˞ઢɾ֯Ҏ֎ͷ͖֯ೲ·ΓɺରԠͰ͖·ͤΜɻ ࣗಈดஔ
ϩοΫ
ʢ%$ 7ʣ
Ԏύωϧʤ#1"ʥ
# ⡪ # ⡪ ⡪ Ԏײث ˞
Nʙ N
࿈ಈ੍ޚث
⡹
" Ҏ্ ˞
⡪ ⡪ Ԏײث ˞ Ҏ্ ˞ ⡹ ࿈ಈ੍ޚث
खಈૢ࡞ശ )0)
෦ϨʔϧৼΕࢭΊͶ͡
ύωϧΓʢน͚ʣ ύωϧΓʢน͚ʣ Nʙ N ʙ ʢยଆ Օॴʷ ʣ ʙ
࿈ಈ੍ޚث Ҏ্ ' -
Ҏ্ ˞ ⡹ ʙ Ҏ্ ˞ खಈૢ࡞ശ )0) ʙ ⡹ ' -
࿈ಈ੍ޚث
˞ Ԏύωϧ߱Լ࣌ɺύωϧͷԼ͔Β' - ·Ͱͷڑ͕ NNҎ
ύωϧΓ
ύωϧΓ
্෦ݻఆ༻Ͷ͡
' -
্ඞཁͱͳΓ·͢ɻ ্෦Լ
ఱҪ
˞ ԎײثԎͨΕนຊମ͔Β ʙ NҎͷڑͰͨΕนຊମ
น ͷ྆ଆʹઃஔ͢Δඞཁ͕͋Γ·͢ɻͨͩ͠ɺͨΕน⡹͕େ͖͍߹
⡹ ˞ Ԏύωϧ߱Լ࣌ɺύωϧͷԼ͔Β' - ·Ͱͷڑ͕ NNҎ্ Ԏ۠ըઢʹԊͬͯ NҎ͝ͱʹԎײثΛઃஔ͢Δ͜ͱΛਪ͠·͢ɻ
ඞཁͱͳΓ·͢ɻ
γϣοΫΞϒιʔό ϩοΫ࿈݁ஔ ࣗಈดஔ &3 % ˞ ԎײثԎͨΕนຊମ͔Β ʙ NҎͷڑͰͨΕนຊମͷ ΞτϨοτϘοΫε
྆ଆʹઃஔ͢Δඞཁ͕͋Γ·͢ɻͨͩ͠ɺͨΕน⡹͕େ͖͍߹Ԏ۠ ಁ໌ෆ೩γʔτ
ըઢʹԊͬͯ NҎ͝ͱʹԎײثΛઃஔ͢Δ͜ͱΛਪ͠·͢ɻ ݕޱʢ ˘ Ҏ্ʣ ෦ϨʔϧΧόʔɹ
্Ϩʔϧ͞ɿ8 ʢผ్ࣄʣ
ʢઐ༻ճઢʣ ࿈ಈ੍ޚث
Ұ࣍ଆిݯ"$ 7 ʢઐ༻ճઢʣ
ϩοΫ ʢผ్ࣄʣ ⡹ Ԏײث ˞ Ұ࣍ଆిݯ"$ 7
#ʔ#அ໘ ৄࡉ ʢผ్ࣄʣ
ݕޱʢ ˘ Ҏ্ʣ ࿈ಈ੍ޚث
ʢผ్ࣄʣ
Ԏײث ˞ ΞτϨοτϘοΫε "ʔ"அ໘ ৄࡉ
182 183

