Page 21 - SARMILA
P. 21
A D F H K L O P R S
12866
3900 4500 4366
2400 1500 2700 1800 1500 3000
5100
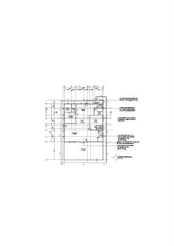
R.C STEP W/TILES FINISH TO
ENGR'S DETAIL (T:300,R:150)
1200 WASH AREA T1
W2 T1 W3 UP 200 W3 FL 0.275
10
W2
1350 1500 up 50 W2 BATH
2700 dn 25 115MM.THK,BRICKWALL
9B WET STORE W3
W2 KITCHEN WITH 20MM.THK CEMENT
9A FL 0.275 FL 0.25 LAUNDRY W2
D3 dn 25 FL 0.275 PLASTER ON BOTHSIDES.
9 X SERVANT'S X
3300 D2 D2 dn 25 ROOM
FL 0.300
8 W2
DRY KITCHEN
3900 FL 0.275
7 W3 R.C COUNTER TOP W/ TILES
3450 1800 W2 DINING GUEST FINISH C/W S.STEEL SINK AT
ROOM
850 MM HT.
AREA
FL 0.300 FL 0.325
6
5
D2 D4
1500 D2 dn 50 FL 0.275 T1
BATH
up 200
4200 dn 25 D3
4 dn 25
18600 W1 LIVING AREA dn 25 D5 12 11
6000 FL 0.300 10 9 8
3900 7 W2 R.C STAIRCASE WITH M.S
3 W1 6 RAILING C/W TILES FINESH
3 4 5
1800 TO ENGR'S DETAIL
D1 (T:250,R:174)
2 up 200 230MM,HALF ROUND ,P.C DRAIN LAI
W2 W1
TO FALL TO ENGR'S DETAIL.
R.C STEP W /TILES FINISH
TO ENGR'S DETAIL
(T:300, R:150)
CARPORCH
6000 FL 0.100
GROUND FLOOR PLAN
SCALE 1:100
1

