Page 158 - Architectural Guide ESWindows 2019
P. 158
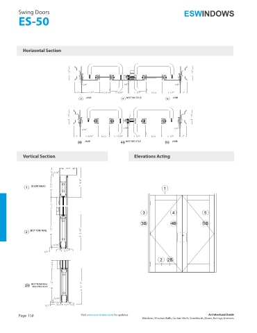
ES-50 DOUBLE ACTING SWING DOOR
Swing Doors
ES-50 DOUBLE ACTING SWING DOOR
ES-50
1
Horizontal Section
DOOR HEAD
1
3 1 4 5
3B 4B 5B DOOR HEAD
1
3 4 5
3B 4B 5B JAMB MEETING STILE JAMB
3 4 5
2 2B 2 BOTTOM RAIL
4
3 JAMB MEETING STILE 5 JAMB
2 2B 2 BOTTOM RAIL
ES-50 DOUBLE ACTING SWING DOOR ES-50 DOUBLE ACTING SWING DOOR
2B BOTTOM RAIL
INSULATING GLASS
3B JAMB MEETING STILE 5B JAMB
4B
2B BOTTOM RAIL
INSULATING GLASS
Vertical Section 3B JAMB MEETING STILE 5B JAMB
Elevations Acting
4B
1
JUNE-2018
©2018 ESWindows. All rights reserved.
1 DOOR HEAD 1
3 4 5
JUNE-2018
©2018 ESWindows. All rights reserved.
3B 4B 5B 1 DOOR HEAD
3 4 5
4B
3 JAMB 3B MEETING STILE 5B 5 JAMB
4
2 2B 2 BOTTOM RAIL
4
3 JAMB MEETING STILE 5 JAMB
2 2B 2 BOTTOM RAIL
2B BOTTOM RAIL
INSULATING GLASS
4B
3B JAMB MEETING STILE 5B JAMB
Page 158 Visit www.eswindows.com for updates. Architectural Guide
Windows, Window Walls, Curtain Walls, Storefronts, Doors, Railings, Interiors
2B BOTTOM RAIL
INSULATING GLASS
4B
JUNE-2018 3B JAMB MEETING STILE 5B JAMB
©2018 ESWindows. All rights reserved.
JUNE-2018
©2018 ESWindows. All rights reserved.

