Page 43 - ไม้สน2545
P. 43

33









































































                                                ์
                                       ั

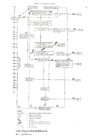
                    ภาพที  2  ขันตอนการปรบปรุงพันธุไมสนสามใบ
                                                  ้
                    ที มา :  กรมปาไม้ (2526)
                              ่
   38   39   40   41   42   43   44   45   46   47   48