Page 246 - AutoCAD Dalam KEJURUTERAAN ELEKTRIK Dan ELEKTRONIK
P. 246

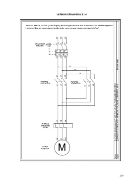
LATIHAN KEMAHIRAN 11.4




















































































                                                                                                            234
   241   242   243   244   245   246   247   248   249   250   251