Page 66 - AutoCAD Dalam KEJURUTERAAN ELEKTRIK Dan ELEKTRONIK
P. 66

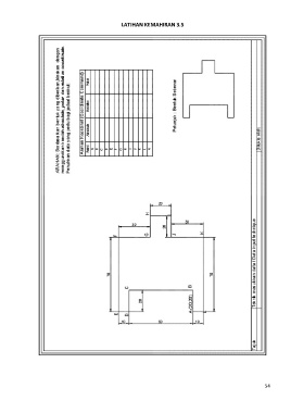
LATIHAN KEMAHIRAN 3.5






















































































                                                                                                             54
   61   62   63   64   65   66   67   68   69   70   71