Page 70 - AutoCAD Dalam KEJURUTERAAN ELEKTRIK Dan ELEKTRONIK
P. 70

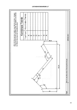
LATIHAN KEMAHIRAN 3.7






















































































                                                                                                             58
   65   66   67   68   69   70   71   72   73   74   75