Page 30 - 90244_Catalog hws sanwa products
P. 30
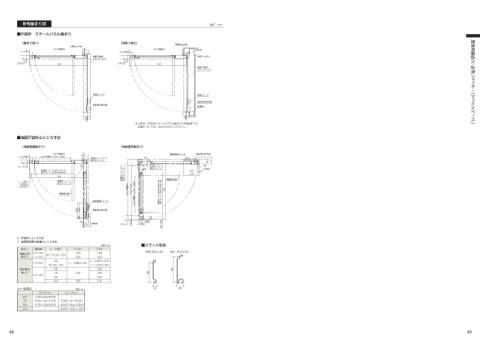
ࢀߟೲ·Γਤ ୯ҐɿNN
ϧ
·Γ
ν
ʔ
ύ
൶
ೲ
ઢ
൶
ʻ
କ
֯
ενʔϧύωϧʢೲ·Γྫ̍ʣʣ
ε
ೲ
·Γ
ω
ύ
ω
ʔ
ϧ
ϧ
Γྫ
̎
ʢ
ೲ·
ʻକ൶ઢೲ·Γʼʼ ʻକ൶֯ೲ·Γʼʼ ˙ށାɹενʔϧύωϧೲ·Γ ενʔϧύωϧʢೲ·Γྫ̎ʣʣ
ೲ·
Γྫ
ʢ
ϧ
କ
ε
ν
̍
ʻ
ʪೲ·Γྫ ʫ ʪೲ·Γྫ ʫ ্͛ࡐࡐ
্
͛
্͛ࡐ
্͛ࡐ
̬
̎ʢ
൶
̬̎ʢକ൶̬ʣʣ କ൶ి࣓ϨϦʔζʔζ କ൶෮چૢ࡞ശശ ̬̎ʢକ൶̬ʣ ̬̎ʢକ൶̬ʣ̬ʣ మࠎபమࠎப
̬
କ
൶
ి
࣓
࡞
କ
Ϧ
କ
൶
ૢ
෮چ
Ϩ
̎
ʢକ
൶
̬
̬̎ʢକ൶̬ʣ
ࢠ
൶
ʔϧ
Ϩ
Ϩʔϧਂ͞͞ ̬̚ʢࢠ൶̬ʣ ʙ Ϩʔϧਂ͞ Ϩʔϧਂ͞
ਂ
Ϩʔϧਂ͞
̬ʢ
̚
̬
ʣ
ʙ
Ϩʔϧਂ͞
ԎλΠϓɿ9 %5 %5
λ
ɿ9
Ԏ
Π
ϓ
Ր
Π
λ
ϓ
ՐλΠϓɿ9ɿ9 : :
କ൶ށା
্͛ࡐ
9 9 କ൶ށା ্͛ࡐ
ενʔϧύωϧ
ενʔϧύωϧ
λ
Ԏ
ϓ
Π
ɿ
εϥοτοτ %5 %5 ԎλΠϓɿ εϥοτοτ %5 %5 εϥοτοτ %5 %5
ϥ
ε
ϥ
ϥ
ՐλΠϓɿ
λ
ϓɿ
Ր
Π
ε
ε
ށା
̙̬
̙̬
Π
&
8
8
ԎλΠϓɿ&%8 &8 %5%5 ށା ̙̬ ̙̬
&%
Ԏ
ɿ
λ
ϓ
%
൶
&
8
ށା
ՐλΠϓɿ&%8 &8 ԎλΠϓɿ9 ԎλΠϓɿ9 କ൶ށା
ϓɿ
Π
Ր
8
λ
କ
&
ν
ʔϧ
ω
ύ
ε
̙̬̙̬ ՐλΠϓɿ9 ՐλΠϓɿ9 ενʔϧύωϧϧ
ආ
༻
ɿ
λ
ϓ
Ԏ
Π
Ϩ
Ϩʔϧਂ͞͞ ԎλΠϓɿ ආ༻ࢠ൶ࢠ൶
ਂ
ʔϧ
Ր
ϓɿ
λ
Π
Ҏ
Ҏ্্ ՐλΠϓɿ
ҎԼ ҎԼ ̬̎ʢକ൶̬ʣ ̬̎ʢକ൶̬ʣ ̬̎ʵ ̬̎ʵ %8 %8
༻
ආ༻ࢠ൶ࢠ൶ ̬̚ʢࢠ൶̬ʣ ʙ ̬̚ʢࢠ൶̬ʣ ʙ ԎλΠϓɿ&%8 &8 ԎλΠϓɿ&%8 &8 ՐλΠϓɿ&%8 &8 ՐλΠϓɿ&%8 &8
ආ
Ϧ
ి
Ϩ
࣓
ి࣓ϨϦʔζ
ి
Ϧ
Ϩ
࣓
କ൶ి࣓ϨϦʔζʔζ ి࣓ϨϦʔζʔζ ి࣓ϨϦʔζ
൶
କ
କ൶෮چૢ࡞ശ
କ൶෮چૢ࡞ശ
କ൶෮چૢ࡞ശശ କ൶෮چૢ࡞ശ మࠎப
ૢ
କ
൶
෮چ
କ൶෮چૢ࡞ശ
࡞
మࠎப
କ൶କ൶
99 ށା εϥοτοτ Ϩʔϧਂ͞ਂ͞
ށା
ε
ϧ
Ϩʔ
ϥ
:: ʙ ʙ ˞্هɺށାενʔϧύωϧೲ·Γͷ࣮ࢪྫͰ͢ɻ
ɹৄࡉʹ͍ͭͯɺ͓͍߹Θ͍ͤͩ͘͞ɻ
˙କ൶ށା;ͱ͜Ζੇ๏
·Γ
ʼ
֯
ೲ
ϧ
ʻକ൶ ʻକ൶ઢೲ·Γʼ ʻକ൶ ʻକ൶֯ೲ·Γʼ ενʔ ενʔϧύωϧʢೲ·Γྫ̍ʣ ενʔ ενʔϧύωϧʢೲ·Γྫ̎ʣ
̍
ύ
Γྫ
ω
ʢ
ೲ·
ʣ
ೲ
ʼ
·Γ
ʣ
ϧ
ઢ
ೲ·
Γྫ
ω
ύ
ʢ
ϧ
̎
ϧ
ʪକ൶ઢೲ·Γʫ ʪକ൶֯ೲ·Γʫ
্ ͛ ࡐ
্͛ࡐ
্ ͛ ࡐ
্͛ࡐ
କ
൶
ʣ
କ൶෮چૢ࡞ശ
̬̎ʢ ̬̎ʢକ൶̬ʣ କ൶ి କ൶ి࣓ϨϦʔζ କ൶෮چૢ࡞ശ ̬̎ʢକ൶̬ʣ ̬̎ʢକ ൶ ̬ʣ మࠎப మࠎப
̬
Ϩ
࣓
ʔζ
Ϧ
̬̎ʢକ൶̬ʣ
̬̎ʢକ൶̬ʣ
ਂ
Ϩʔϧ Ϩʔϧਂ͞ ̬̚ʢࢠ൶̬ʣ ʙ Ϩʔϧਂ͞ Ϩʔϧ Ϩʔϧਂ͞
̬̚ʢࢠ൶̬ʣ ʙ
Ϩʔϧਂ͞
͞
ਂ
͞
ϓ
Π
Ԏλ ԎλΠϓɿ9 %5 %5
ɿ9
Րλ ՐλΠϓɿ9 :
Π
ϓ
ɿ9
କ൶ށା
্͛ࡐ
9 9 : କ൶ށା ύ ω ϧ ্ ͛ ࡐ
ενʔϧύωϧ
ενʔϧ
ϓ
ɿ
Π
εϥοτ εϥοτ %5 %5 Ԏλ ԎλΠϓɿ εϥοτ %5 %5 εϥοτ %5 %5
εϥοτ
εϥοτ
ՐλΠϓɿ
&
8
ϓ
Π
Ԏλ ԎλΠϓɿ&%8 &8 %5 %5 ՐλΠϓɿ ށା ށା ̙̬ ̙̬ ̙̬ ̙̬
ɿ
&%
8
କ൶ށା
8
&
ϓɿ
Π
Րλ ՐλΠϓɿ&%8 &8 ԎλΠϓɿ9 ԎλΠϓɿ9 କ൶ށା
8
%
&
ενʔϧύωϧ
̙̬ ̙̬ ՐλΠϓɿ9 ՐλΠϓɿ9 ενʔϧ ύ ω ϧ
Π
ɿ
ϓ
Ϩʔϧ Ϩʔϧਂ͞ Ԏλ ԎλΠϓɿ ආ༻ࢠ൶
͞
ਂ
Π
ϓɿ
Ҏ Ҏ্ Րλ ՐλΠϓɿ
্
ҎԼ ̬̎ʢକ൶̬ʣ ̬̎ʵ ̬̎ʢକ൶̬ʣ ̬̎ʵ %8 %8
ҎԼ
ආ༻ࢠ൶
ආ༻ࢠ൶ ̬̚ʢࢠ൶̬ʣ ʙ ̬̚ʢࢠ൶̬ʣ ʙ ԎλΠϓɿ&%8 &8 ՐλΠϓɿ&%8 &8 ԎλΠϓɿ&%8 &8 ՐλΠϓɿ&%8 &8 ආ༻ࢠ൶
ʔζ
Ϧ
Ϧ
ʔζ
କ൶ి࣓ϨϦʔζ ి࣓Ϩ ి࣓ϨϦʔζ ి࣓Ϩ ి࣓ϨϦʔζ
କ൶ి࣓ϨϦʔζ
କ൶෮چૢ࡞ശ
କ൶෮چ ૢ ࡞ ശ
କ൶෮چ ૢ ࡞ ശ କ൶෮چૢ࡞ശ మࠎப మࠎப
କ൶෮چૢ࡞ശ
କ൶෮چૢ࡞ശ
କ൶ କ൶
εϥοτ
9 9 ށା ށା εϥοτ Ϩʔϧ Ϩʔϧਂ͞
ਂ͞
: : ʙ ʙ
X:戸袋枠ふところ寸法
Y:袖扉復旧操作箱部ふところ寸法
୯ҐɿNN ˙εϥοτܗঢ়
ೲ·Γ କ൶ް Ϩʔϧਂ͞ 9ੇ๏ :ੇ๏ ʪ' εϥοτʫ ʪ( εϥοτʫ
କ൶ઢ %5 ɺ ɺ ɺ
ೲ·Γ %5
Ϩʔϧਂ͞
%5 Ϩʔϧਂ͞
ɺ ɺ Ϩʔϧਂ͞
କ൶֯
ೲ·Γ
%5
Ϩʔϧਂ͞ ୯ҐɿNN
' εϥοτ ( εϥοτ
ʽ8ʽ ʵ
ʻ8ʽ ʻ8ʽ
ʻ8ʽ ʻ8ʽ
ʵ ʻ8ʽ
48 49

