Page 35 - 90244_Catalog hws sanwa products
P. 35
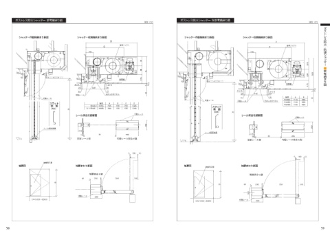
ϙετϨεՐγϟολʔ ࢀߟೲ·Γਤ ϙετϨεՐγϟολʔ ̬ࢀߟೲ·Γਤ
୯ҐɿNN ୯ҐɿNN
γϟολʔ࡞ಈ࣌ೲ·Γஅ໘ γϟολʔऩೲ࣌ೲ·Γஅ໘ γϟολʔ࡞ಈ࣌ೲ·Γஅ໘ γϟολʔऩೲ࣌ೲ·Γஅ໘
% ̖
רऔγϟϑτ רऔγϟϑτ
$ ̗
B
B
A
։ดػ
·͙͞ ·͙͞ ։ดػ
·͙͞ ·͙͞
ՄಈϨʔϧ ఱҪ;͗͞ύωϧ ⡪
ՄಈϨʔϧ ࣠ड " # ⡪
ՄಈϨʔϧ ՄಈϨʔϧ ఱҪ;͗͞ύωϧ 18
εϥοτ ࣠ड " # $ % 18
அɹ໘ ɹɹɹ⡹ʽ 1 εϥοτ 18
ʦ'ܗʧ ⡪ ⡹ʽ 1 அɹ໘
ʦ(ܗʧ ⡪
Ϩʔϧಥ߹ͤ෦அ໘ ՄಈϨʔϧ Ϩʔϧಥ߹ͤ෦அ໘
ՄಈϨʔϧ
Ϩʔϧݻఆஔ
Ϩʔϧݻఆஔ
⡹ ⡹
' - ݻఆϨʔϧ෦ ՄಈϨʔϧಥ߹ͤ෦ ݻఆϨʔϧ෦ ՄಈϨʔϧಥ߹ͤ෦
' -
ආ༻ࢠ൶
କ൶ਤ କ൶·ΘΓஅ໘ କ൶ਤ କ൶·ΘΓஅ໘
ආ༻ࢠ൶
କ൶ಥ߹ͤ෦ କ൶ಥ߹ͤ෦
⡹ ̙̬
⡪
⡪ ⡹ %8
ՄಈϨʔϧ
̙̬ʢ ʙ ʣ ՄಈϨʔϧ
̙̬ʢ ʙ ʣ
58 59

