Page 18 - Architectural Guide ESWindows 2019
P. 18
3
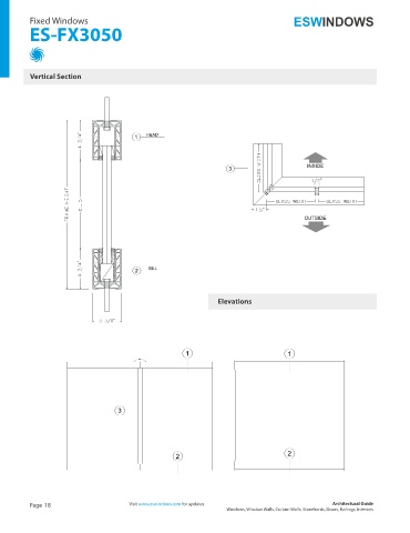
Fixed Windows ES-FX3050 FRAMELESS GLASS WALL SYSTEM 1 1 HEAD
ES-FX3050 OUTSIDE INSIDE
ES-FX3050 FRAMELESS GLASS WALL SYSTEM
1
1 HEAD
Vertical Section
3 2 SILL
ES-FX3050 FRAMELESS GLASS WALL SYSTEM OUTSIDE INSIDE 2
1
ES-FX3050 FRAMELESS GLASS WALL SYSTEM
1
2 2 SILL
1 HEAD HEAD
1
3 INSIDE INSIDE
3 3
INSIDE
OUTSIDE
ES-FX3050 FRAMELESS GLASS WALL SYSTEM
1
3 OUTSIDE
SILL
2 OUTSIDE 1 2 INSIDE HEAD FECHA: JUL-2017
OUTSIDE
3
FECHA: JUL-2017
INSIDE
OUTSIDE
3 INSIDE
2 OUTSIDE 2 2 2 SILL SILL
FECHA: JUL-2017
Elevations
3 INSIDE
ES-FX3050 FRAMELESS GLASS WALL SYSTEM
OUTSIDE
3 INSIDE FECHA: JUL-2017 ES-FX3050 FRAMELESS GLASS WALL SYSTEM
1 1
1 HEAD 1 HEAD
OUTSIDE
3
FECHA: JUL-2017 OUTSIDE INSIDE OUTSIDE INSIDE
2 2 2 SILL 2 SILL
Page 18 3 Visit www.eswindows.com for updates. Architectural Guide
INSIDE
Windows, Window Walls, Curtain Walls, Storefronts, Doors, Railings, Interiors
FECHA: ABR-2017
OUTSIDE
FECHA: JUL-2017

