Page 79 - MODUL 4 LANDSKAP HORTIKULTUR TING.4
P. 79

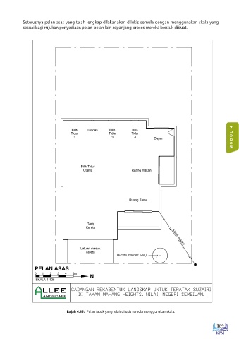
Seterusnya pelan asas yang telah lengkap dilakar akan dilukis semula dengan menggunakan skala yang
             sesuai bagi rujukan penyediaan pelan-pelan lain sepanjang proses mereka bentuk dibuat.





























  4                                                                                                                   4
 MODUL                                                                                                               MODUL





















































                                  Rajah 4.45:   Pelan tapak yang telah dilukis semula menggunakan skala.


                                                                                                             189
   74   75   76   77   78   79   80   81   82   83   84