Page 39 - SARMILA
P. 39
natural anodised alumn frame fixed
window with glass to manuf's detail
20 19 18 17 16 15 14 13 12 11 10 9 8 7 6 5 4 W2
X
W4
3 X
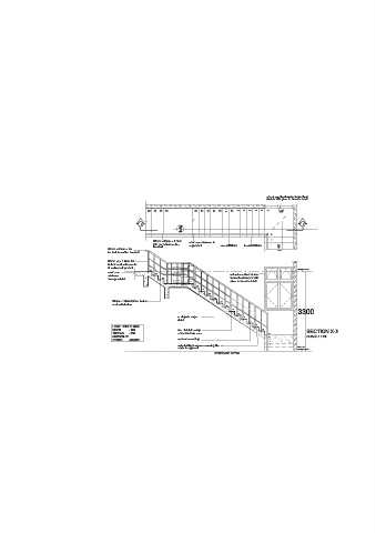
50mm x 50mm x 1.6mm reinf.conc,staircase to 2
thk. ms hallow section eng'rdetail riser =150mm
handrail tread =250mm 1 UP
50mm x 50mm x thk 1200
ms hollow section handrail
30mm sq x 1.2mm thk
hollow section horizontal
& vertical rail painted
20 FLOOR LEVEL
reinf.conc , 19 natural anodised alumn
staircase
18 frame fixed window with
to engr's detail glass to manuf's detail
17
16
15
14
13
50mm x 1.6mm thk.ms hollow 12
section balusters 11
10 3300
9
rc steps to engr's 8
detail
7
LEVEL HEIGHT :3300 6
RISER : 175 m.s fish tail cramp 5 SECTION X-X
THREAD : 250 embedded into conc 4
NUMBER OF 3 SCALE : 1:30
STAIRS :20 NOS cement screeding 2
selected homougenous nosing tiles or 1
GROUND
equiv to approval FLOOR LEVEL
STAIRCASE DETAIL

