Page 68 - AutoCAD Dalam KEJURUTERAAN ELEKTRIK Dan ELEKTRONIK
P. 68

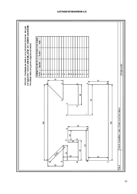
LATIHAN KEMAHIRAN 3.6






















































































                                                                                                             56
   63   64   65   66   67   68   69   70   71   72   73