Page 254 - AutoCAD Dalam KEJURUTERAAN ELEKTRIK Dan ELEKTRONIK
P. 254

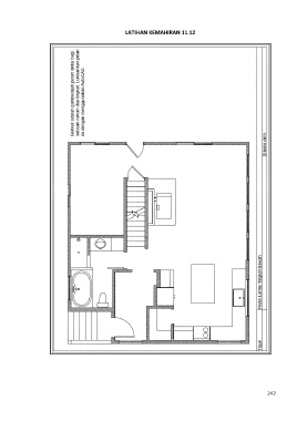
LATIHAN KEMAHIRAN 11.12



















































































                                                                                                            242
   249   250   251   252   253   254   255   256   257   258   259