Page 58 - AutoCAD Dalam KEJURUTERAAN ELEKTRIK Dan ELEKTRONIK
P. 58

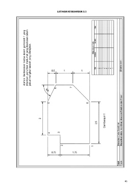
LATIHAN KEMAHIRAN 3.1






















































































                                                                                                             46
   53   54   55   56   57   58   59   60   61   62   63